MANAGUA, NI
2021
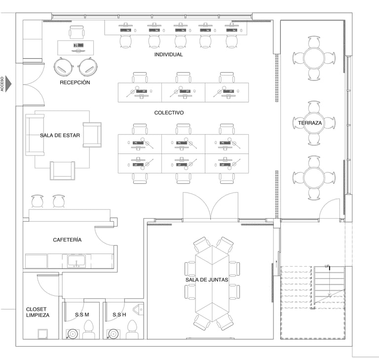
PROPOSAL FOR A COWORKING OFFICE SPACE IN A RETAIL MODULE.
INTERIOR REMODEL PROPOSAL
jordan@jot-arch.com
+505 8970 4164
Managua, Discover II, Suite 6A